旋转式

自动上下料系统

产品综述

三坐标测量机操作人员在日常工作中,经常会测量成批相同的工件,这就需要对工件频繁的上料、下料,以及定位,消耗了大量时间。为了解决这一问题,出现了配合测量机工作的上下料系统。

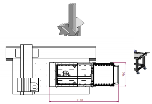
麦科三维上下料系统是一套辅助三坐标测量工件更换、定位的装置。它将工件固定在托盘上,通过滚轮将工件移入或移出测量机工作位置,实现了在测量机外的操作台上进行工件的更换。同时,托盘在测量机的测量位置脱离滚轮,与测量机平台整合为一体,保证了工件测量的准确性。 

上下料系统设有转台,转台远离三坐标测量机的一端为拆装工位,靠近三坐标测量机的一端为待测工位。在拆装工位上进行已测工件的拆卸和待测工件的装夹,装夹好待测工件后,旋转转台180度,此时原来的拆装工位变为待测工位,原来的待测工位变为拆装工位。将待测工件沿辊道输送到三坐标测量机的测量位置,进行测量;同时在当前的拆装工位进行已测工件的拆卸及待测工件的装夹。工件测量完毕以后,沿辊道输送回当前的待测工位,转台旋转180度,进入下次循环。如此循环往复,从而实现上下料系统的伺服工作。

使用上下料系统更换工件具有以下优势:

1、保障人、机安全。

工件安装操作过程中,可能发生碰撞、跌落等意外。使用上下料系统后,操作工位远离测量机,操作空间更广阔,最大限度的保护人、机安全。

2、提高工作效率。

拆装工件的操作不占用测量机测件时间,测量的同时进行下一工件安装准备。一旦测量完成,迅速更换,提高机器利用率。可适应多品种的不确定性测量需求。

产品参数:

1、适用于桥式测量机。

2、可应用于发动机缸体、缸盖、曲轴、变速箱等类似的、重量不大于200公斤、长宽尺小于600*600mm 的工件的上下料操作。

3、托盘尺寸:600*600mm。

4、托盘定位重复性: +/- 0.1 mm。
0.jpg

产品特点:

  • 浮动三点式定位

    符合几何原理的三点式定位,稳定可靠。

    采用标准元件——钢球作为过渡器件,自动补偿制造、重力、温度等带来的变形与位移;采用镶嵌结构,工艺性更好,外观更精致。
    图片1.png

  • 平稳的升降动作

    利用偏心机构获得正弦规律变加速动作,升降更平稳。 

    升降框两侧含有同步机构,强制保证两边同步,避免倾斜。
    图片2.jpg

  • 便捷的地面安装

  • 完善的安全措施

    阻挡台面上托盘滑出的挡销,其受力作用于地面装置,减少对机台的冲击。

    动力丧失时,也可通过旋动同步轴实现升降动作。

400-812-0012

电话 电 话

微信 微 信

1716724135

QQ Q Q

info@metro-3d.com

邮箱 邮 箱